Incrível cobertura de alto luxo, localizada no Bairro Santa Lucia, BH. Com total privacidade e vista panorâmica, próximo ao Shopping Falls; instituto criança.
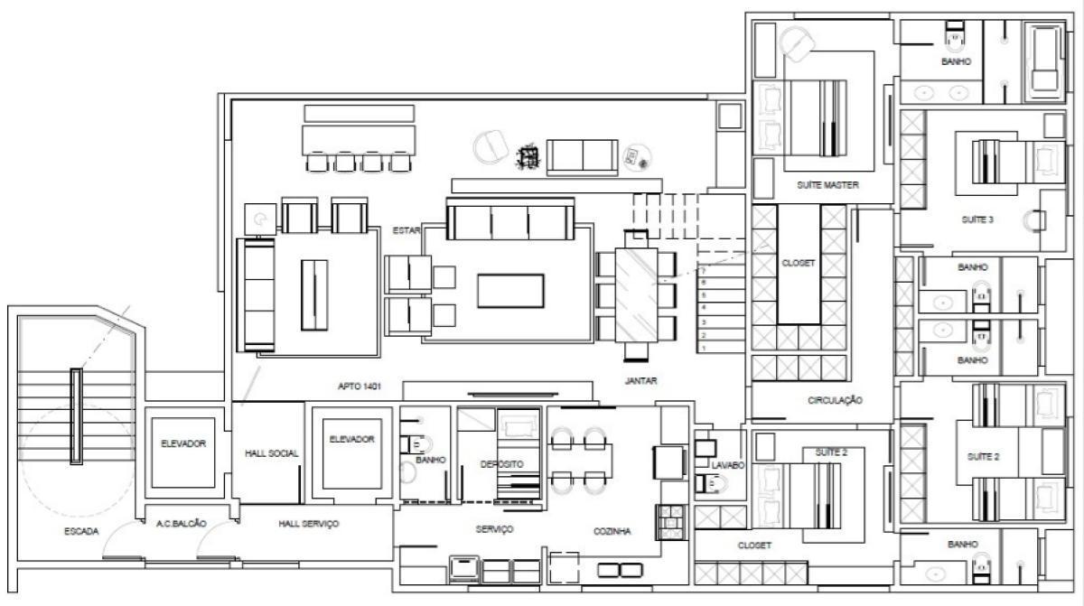
1° Pavimento: 04 quartos sendo 03 suítes e 01 suíte master com closet; sala de estar e jantar ampla; cozinha; 05 banheiros sendo 04 privativos e 01 social; área de serviço; deposito; elevador de acesso para o terraço.
2° Pavimento: Terraço; ampla varanda; lavabo; elevador de acesso.
04 vagas de garagem.
Pisos: Sala e cozinha em porcelanato
Quartos em laminados
Infraestrutura: Porteiro virtual 24hrs; interfone; portão eletrônico; gás canalizado; elevadores; piscina; churrasqueira gourmet; quadra; salão de festas; playground; jardim; bicicletário; sauna; espaço Kids; sala de massagem; car wash (área destinada para lavagem de carro); CFTV; academia; SPA.
Apartamento novo pronto para morar.
Santa Lúcia, Belo Horizonte - MG

Inova Plataforma de Integração Ltda
Endereço: Rua Alberto Cintra