Não perca a oportunidade de adquirir este terreno incrível em Vespasiano, MG!
Ele é perfeito para empresas que buscam uma localização estratégica, próximo à MG-010 e ao Alphaville Vespasiano, assim como transportadoras, empresas de ônibus, e-commerces, distribuidoras de peças e galpões em geral.
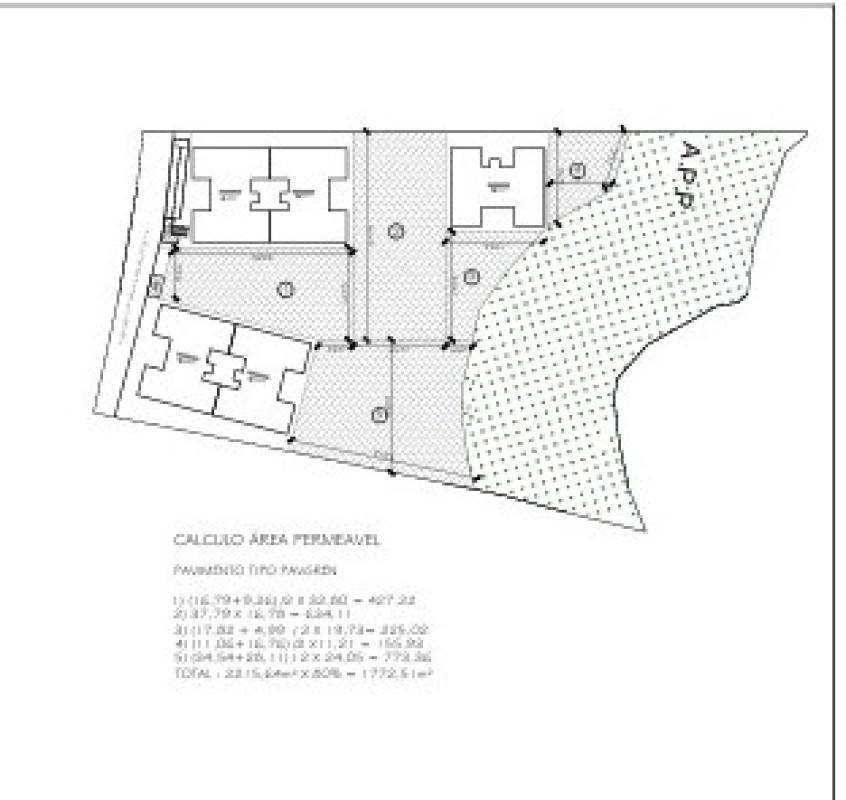
O terreno possui projeto aprovado para a construção de 5 blocos de prédios, o que pode ser interessante pra alguma construtora.
Além disso, há uma casa no terreno que pode ser usado como escritório administrativo. Esta casa possui com 3 quartos, 2 banheiros, sala, copa, cozinha e um belo terreno fértil pra plantações.
O terreno possui projeto aprovado para a construção de 5 blocos de prédios, o que pode ser interessante pra alguma construtora.
A apenas 15, 20 minutos de carro do Minas Shopping, este terreno é ideal para quem busca praticidade e facilidade de acesso. Agende já a sua visita e não perca essa oportunidade única!
Angicos, Vespasiano - MG

Inova Plataforma de Integração Ltda
Endereço: Rua Alberto Cintra