Excelente oportunidade de investimento em um lote no Jardim de Alá, em Justinópolis, Ribeirão das Neves, MG. Localizado em uma região em constante valorização, este terreno possui uma topografia favorável para a construção de sua casa dos sonhos ou até mesmo para empreendimentos comerciais.
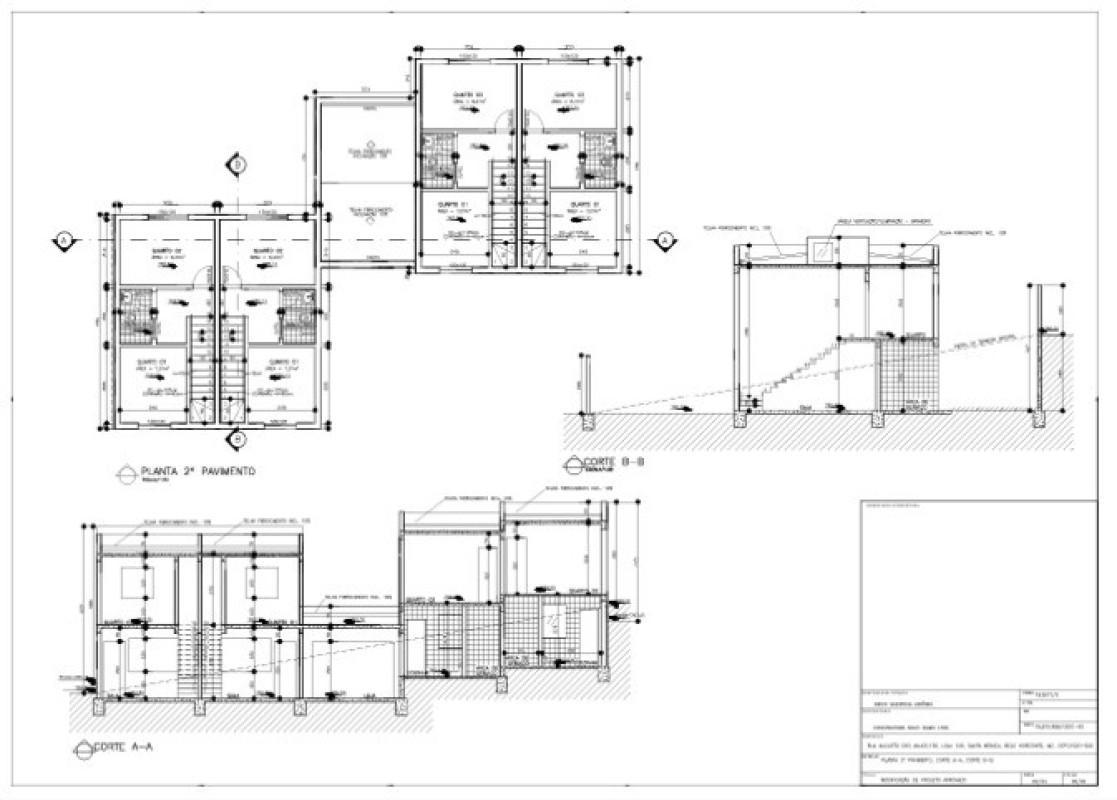
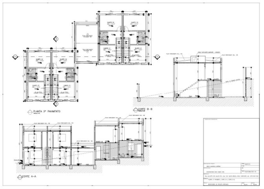
Lote de 405m², sendo 19,60m² de frente. Já acompanha projeto arquitetönico aprovado com 4 casaas duplex, 2 quartos, com frente para a rua e uma loja / galpao. Documentaçao 100%.
Com uma área ampla e bem localizada, este lote oferece facilidade de acesso a serviços essenciais, como escolas, supermercados e transporte público. Além disso, o bairro conta com uma infraestrutura completa, com ruas asfaltadas e iluminação pública, garantindo conforto e segurança para toda a família.
Não perca a oportunidade de adquirir este lote e garantir um investimento seguro e rentável. Entre em contato conosco e agende uma visita para conhecer de perto todas as vantagens e possibilidades que este terreno pode oferecer. Aproveite essa chance única de construir o seu futuro no Jardim de Alá, em Ribeirão das Neves, MG.
Os valores e informaçoes poderao sofrer alteraçoes sem aviso previo. Por esse motivo, solicitamos confirmaçao.
Jardim de Alá (justinópolis), Ribeirão das Neves - MG

Inova Plataforma de Integração Ltda
Endereço: Rua Alberto Cintra